مشروع Barthélémy Griño يعيد صياغة العلاقة بين المباني التاريخية والمساحات المعاصرة
سياق المشروع وموقعه الحضري
يقع المشروع في قلب ما يُعرف بـ«المثلث الذهبي» في باريس، وتحديدًا في شارع فرانسوا الأول ضمن الدائرة الثامنة، على مقربة من شارع مونتين. هذا الموقع لا يكتسب أهميته من مركزية موقعه فحسب، بل من كثافة طبقاته العمرانية والتاريخية، ما جعله بحاجة إلى مقاربة تجديد دقيقة بدل تدخل شكلي سطحي.
منطلقات إعادة التأهيل
انطلق مشروع إعادة التأهيل من قراءة واعية للبنية القائمة والسياق الحضري المحيط. وبدل السعي إلى طمس الموروث المعماري، جرى التعامل معه كإطار ناظم للتدخل الجديد، بما يسمح بالحفاظ على استمرارية المكان مع تحديث وظائفه الداخلية.
مقاربة تصميمية متوازنة
اعتمدت عملية التجديد على إعادة هيكلة شاملة تعالج احتياجات الاستخدام المعاصر دون الإخلال بالقيم المعمارية الأصلية. ومن خلال هذا التوازن، تم الوصول إلى حلول وظيفية تتماشى مع المعايير الحالية، مع احترام النسيج العمراني المحيط وطبيعة الموقع الحسّاسة.




الحالة الإنشائية قبل التدخل
قبل بدء أعمال إعادة التأهيل، كانت الهياكل المعمارية الثلاثة، إلى جانب الفناء الداخلي، تعاني من آثار التقادم وعدم الانسجام البنيوي. كما ساهمت سلسلة من التعديلات غير المدروسة، التي أُنجزت عبر فترات زمنية مختلفة، في إضعاف الكفاءة الوظيفية للمباني وتشويه علاقتها المتبادلة.
استراتيجيات المعالجة المعمارية
شملت عملية التأهيل المبنى الرئيسي ذي الطراز الهوسماني، إضافة إلى الجناح الخلفي المطل على الفناء، وهما مبنيان يعود تاريخ إنشائهما إلى النصف الثاني من القرن التاسع عشر. وقد جرى التعامل معهما بمنهج يوازن بين الحفاظ على الخصائص التاريخية ومعالجة القصور الإنشائي والوظيفي.
قرار الإزالة وإعادة البناء
في المقابل، تم التعامل مع الهيكل الثالث، وهو إضافة محدودة أُنجزت خلال سبعينيات القرن الماضي، بوصفه عنصرًا غير منسجم مع السياق العام. وبناءً على ذلك، تقرر هدمه بالكامل وإعادة بنائه، بما يسمح بإعادة تنظيم الكتلة المعمارية وتحسين أداء الموقع ككل.


تطور البرنامج الوظيفي
بعد أربعة عشر شهرًا من أعمال التنفيذ، أُعيد تعريف البرنامج الوظيفي للمبنى ليجمع بين المكاتب وصالات العرض ضمن منظومة واحدة متكاملة. هذا التحول لم يقتصر على تنويع الاستخدامات، بل أسهم في صياغة هوية جديدة للمكان تتلاءم مع متطلبات العمل المعاصر.
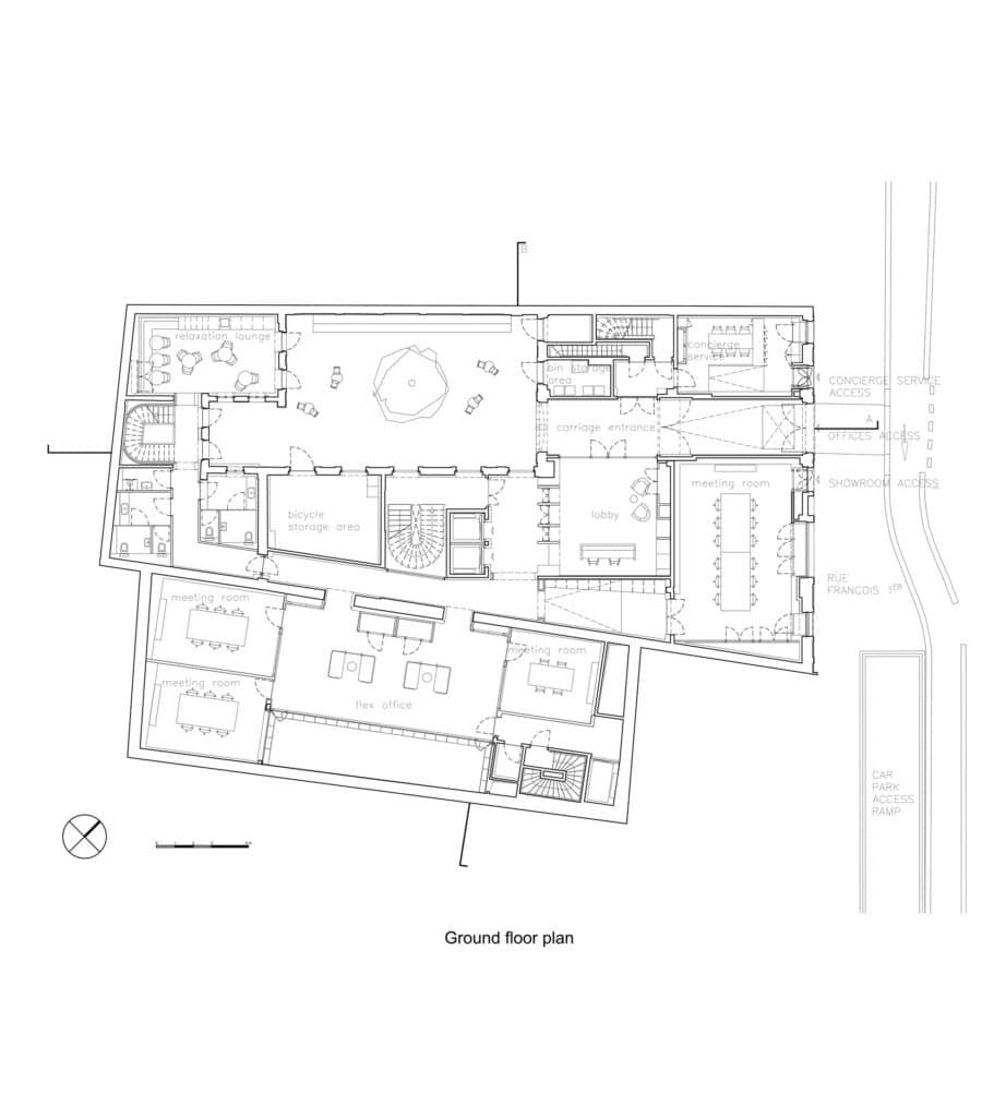
تنظيم الفضاءات الداخلية
توزعت المكاتب بين واجهة الشارع والفناء الداخلي، ما أتاح إنشاء فراغ ممتد يتمتع بنفاذ بصري مزدوج. وقد لعبت الفواصل الزجاجية الواسعة دورًا محوريًا في تعزيز هذا الاتصال البصري، مع الحفاظ في الوقت ذاته على وضوح التنظيم الداخلي دون إغلاق أو انقطاع.
جودة بيئة العمل
في الجهة المطلة على الفناء، تم تصميم فضاء عمل مفتوح يوازن بين الانفتاح والخصوصية. وضمن هذا السياق، خُصصت منطقة مستقلة للمكالمات الهاتفية، عولجت صوتيًا للحد من الضوضاء. يسهم هذا الحل في دعم التركيز وتوفير بيئة عمل أكثر هدوءًا، دون التأثير على مرونة الاستخدام العام للمساحة.


تصميم المساحات الداخلية
تولّت Sylvia Griño مهمة تصميم المساحات الداخلية، مع التركيز على تعزيز الجودة الجوهرية للمكان من خلال استخدام قطع أثاث مصممة خصيصًا لكل فراغ. هذه القطع لم تكن مجرد عناصر ديكورية، بل أدوات أساسية لإعادة تعريف الوظيفة وتجربة المستخدم داخل المبنى.
اختيار المواد والتشطيبات
اعتمدت التصميمات على مواد نبيلة ومستدامة المصدر بدرجات لونية فاتحة، مع لمسات دافئة وتشطيبات دقيقة. هذا المزيج يخلق إحساسًا بالدفء والراحة، مع الحفاظ على الطابع العصري والأنيق للفضاءات الداخلية.
توزيع الفراغات والضوء الطبيعي
تتميز المساحات الداخلية بأحجام سخية وفراغات متناغمة تدعم تصميمًا رصينًا وواضحًا. كما يستفيد كل من مساحات العمل والمناطق الاجتماعية من ضوء طبيعي وفير، مما يعزز الانفتاح ويتيح مرونة عالية في التشكيل والتنظيم.


تعزيز هوية الموقع
نجح النهج المعماري في إبراز الخصائص الفريدة للموقع، وتحويله إلى فضاء يعكس إحساسًا بالسكينة والرفاهية. لقد تم التعامل مع كل عنصر في الموقع، من الفراغات الخارجية إلى الهياكل الداخلية، بهدف تعزيز الانسجام بين الطبيعة المحيطة والبنية المعمارية.
التكامل بين إعادة التأهيل والتصميم الداخلي
قدّمت Barthélémy Griño مشروعًا متكاملًا يجمع بين إعادة التأهيل والتصميم الداخلي، مع تركيز واضح على التوازن بين الوظيفة والجمالية. وقد ساعد هذا التكامل على خلق تجربة مكانية متسقة، حيث تلتقي الراحة البصرية مع الكفاءة العملية.
رؤية معمقة لفن العيش
يتجاوز المبنى كونه مجرد بيئة عمل؛ فهو يجسد رؤية شاملة لفن العيش المشترك، حيث تتناغم المكاتب، المناطق الاجتماعية، والفراغات المفتوحة لتشكيل تجربة مكانية متكاملة تعزز التفاعل، الراحة، والرفاهية في آن واحد.

✦ تحليل ArchUp التحريري
تتمثل القيمة الإيجابية الأساسية للمشروع في قدرته على دمج الوظائف الحديثة مع الهياكل التاريخية، مما يسمح بإعادة استخدام المباني بطريقة تدعم بيئة العمل المعاصرة مع الحفاظ على بعض من الطابع الأصلي. ومع ذلك، يمكن ملاحظة أن التركيز الكبير على إعادة التنظيم الداخلي والتصميم الداخلي قد يقلل من فرصة إبراز التفاصيل المعمارية التاريخية الأصيلة أو استكشاف إمكانات توسعية أكثر جرأة. كما أن المساحات الزجاجية الواسعة تعزز النفاذ البصري، لكنها قد تؤثر على الخصوصية وتفرض تحديات بيئية تتعلق بالعزل الحراري والتحكم في الضوء الطبيعي.
من زاوية أوسع، يوفر المشروع مثالًا جيدًا على استراتيجيات إعادة تأهيل المباني في الأحياء التاريخية، لكن يمكن اعتباره محدودًا من حيث ابتكار حلول معمارية جديدة أو معالجة التفاعلات الحضرية المعقدة. بالتالي، يمكن الاستفادة من هذا النموذج كدراسة حالة لكيفية الموازنة بين الحفاظ على التراث وتحقيق الاستخدام العملي، مع الأخذ في الاعتبار الحاجة لمزيد من التجارب التي تستكشف إمكانيات التكيف مع المتطلبات المستقبلية للالمدن المكتظة والبيئات الحضرية المعقدة.







