كاسا ريو: اندماج معماري حساس مع الطبيعة والتصميم المستدام
استجابة المشروع للطبوغرافيا
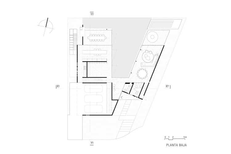
يعتبر مشروع “كاسا ريو” مثالًا على التصميم الحساس للطبوغرافيا والهندسة غير المنتظمة للأرض. فقد تم اختيار الشكل على شكل حرف “V” بشكل مدروس، ليس فقط لمعالجة تحديات الأرض الشبه منحرفة، بل أيضًا لإيجاد علاقة متناغمة بين المبنى والمحيط الطبيعي.
خلق مساحة مركزية متصلة بالبيئة
يوفر الشكل المثلثي للمبنى حديقة مركزية تعمل كحلقة وصل بين مختلف أجزاء المنزل. هذه الحديقة لا تقتصر على الجانب الجمالي، بل تؤطر المشاهد الطبيعية المحيطة، مما يعزز الشعور بالاندماج مع البيئة ويخلق تجربة مكانية متكاملة.



اندماج المبنى مع الطبيعة
يهدف تصميم المشروع إلى جعل المعمار يختفي بين الأشجار، مما يعكس فهمًا عميقًا للعلاقة بين المبنى والبيئة المحيطة. تعتمد الواجهة على جدران عمياء تحد من الانفتاح على الخارج الأمامي، بينما يتم فتح الجزء الخلفي بالكامل نحو المناظر الطبيعية، مما يخلق توازنًا بين الخصوصية والاندماج الطبيعي.
منزل خفيف وشفاف
يعكس التصميم رؤية منزل خفيف وشفاف، قادر على إدراك محيطه دون فرض وجوده عليه. هذا النهج يسمح بالتفاعل مع البيئة بطريقة حساسة، حيث تصبح المشاهد الطبيعية جزءًا من تجربة الساكن اليومية، ويشعر الزائر بأن المبنى جزء من المشهد الطبيعي وليس عنصرًا خارجيًا منفصلًا.

التنظيم الحجمي للتصميم
يتكشف المشروع من خلال حجمين رئيسيين، يعكسان فهمًا دقيقًا للطبوغرافيا ووظائف المساحات. الحجم الأول، المائل ليتلاءم مع انحدار الأرض، يضم المساحات الاجتماعية الأساسية مثل غرفة المعيشة والطعام ذات الارتفاع المزدوج، مما يخلق إحساسًا بالاتساع والانفتاح.
مساحات متعددة الاستخدامات
يشمل هذا الحجم أيضًا مكتبًا ذو مدخل مستقل ومنصة علوية (ميزانين) تضخم الشعور بالمساحة الداخلية. تصميم هذه المساحات يوازن بين الخصوصية والانفتاح، حيث يمكن للسكان التنقل بين النشاطات اليومية بسلاسة.
تواصل بين الداخل والخارج
خارجيًا، يعزز المسبح وموقد النار العلاقة بين العمارة والمنظر الطبيعي المحيط. هذا التداخل بين الداخل والخارج يجعل التجربة السكنية أكثر تكاملًا ويعكس فلسفة تصميمية تسعى إلى دمج المبنى مع البيئة المحيطة بشكل متناغم.


التركيز على الخدمات والطابق الأرضي
يركز الحجم الثاني من المشروع على الوظائف الخدمية، حيث يضم الطابق الأرضي المطبخ وغرفة التلفاز والتراسات، إلى جانب نواة الحركة التي تسهل التنقل بين المساحات. كما يحتوي القبو على غرف تخزين ومرافق خدمية، ما يضمن تنظيمًا فعالًا للوظائف اليومية دون التأثير على جودة المساحات الرئيسية.
الطابق العلوي للمساحات الخاصة
تم تخصيص الطابق العلوي للمساحات الخاصة بالسكان، ويشمل غرفة نوم رئيسية مع خزانة ملابس كبيرة، بالإضافة إلى ثلاث غرف نوم ثانوية. تم تصميم هذه الغرف بحيث تفتح بشكل استراتيجي نحو الواجهة الشمالية الغربية، ما يتيح مشاهد مراقبة طبيعية مع الحفاظ على الخصوصية، مؤكدًا على مبدأ التوازن بين الانفتاح والخصوصية في التصميم.


دمج الهيكل ضمن لغة العمارة
يعكس التصميم الهيكلي في المشروع نهجًا مدروسًا لدمجه كجزء من لغة العمارة، حيث لا يقتصر دوره على الدعم البنيوي فحسب، بل يساهم في التعبير الجمالي والوظيفي للمبنى.
امتدادات واسعة وإحساس بالخفة
تسمح الأعمدة الفولاذية الرقيقة، الصفائح، وأجهزة الشد المعدنية بخلق امتدادات واسعة، ما يعزز شعور الخفة والانفتاح داخل المساحات. في غرف النوم، تعمل أجهزة الشد على تنظيم ضوء الشمس وتوجيه المشاهد الخارجية، موفرة تجربة مكانية تتناغم مع الطبيعة المحيطة.
الطفو والشفافية
كما أن الجدران الجانبية للحجم الأول ترتفع عن الأرض، مما يضيف إحساسًا بالخفة والشفافية. هذا النهج الهيكلي يساهم في دمج المبنى مع البيئة الطبيعية بشكل سلس، ويجعل الهندسة جزءًا من التجربة البصرية والوظيفية للساكن.


حوار متباين في الواجهات
تخلق الواجهات في المشروع حوارًا بصريًا متباينًا يعكس فلسفة التصميم الديناميكي. فالواجهة الأمامية والجانبية تبدو متزنة وصلبة، ما يمنح المبنى حضورًا معماريًا ثابتًا.
الانفتاح نحو الطبيعة
على النقيض، تنفتح الواجهة الخلفية بالكامل عبر نوافذ تمتد من الأرض حتى السقف، ما يذيب الحدود بين الداخل والخارج. هذا الانفتاح يعزز التواصل مع البيئة الطبيعية المحيطة، ويوفر تجربة مكانية غامرة للسكان، حيث يصبح المشهد الخارجي جزءًا من الحياة اليومية داخل المنزل.

المواد والاندماج مع السياق
تعزز المواد المختارة للمشروع الاندماج مع السياق الطبيعي والثقافي المحيط. فقد تم الاعتماد على موارد محلية مثل رخام سانتو توماس، وقشرة الجوز، والألواح المضلعة المشابهة للخشب، ما يخلق توازنًا بين العمارة والبيئة الطبيعية.
تصميم مستدام وحدائق منخفضة الاستهلاك
تتفاعل هذه المواد مع حدائق جافة تحتوي على حصى منضبط ونباتات محلية تحتاج إلى استهلاك منخفض للمياه. بالإضافة إلى ذلك، يستبدل المشروع العشب التقليدي بتنسيق حدائق مستدامة، ما يقلل الأثر البيئي ويعزز الارتباط بالإقليم، مؤكدًا على فلسفة تصميمية مستدامة وواعية بيئيًا.

✦ تحليل ArchUp التحريري
يعكس مشروع “كاسا ريو” جهدًا واضحًا في الدمج بين العمارة والطبيعة، ويظهر اهتمامًا بالتصميم المستدام واستخدام المواد المحلية، مما يضيف قيمة بيئية وجمالية للمكان. كما أن تنظيم المساحات والحجمين الرئيسيين يوفر تجربة مكانية متسقة ويعكس حسًا معماريًا دقيقًا.
مع ذلك، قد يلاحظ بعض التحديات في القراءة المكانية للمبنى للمستخدمين الجدد، حيث يعتمد المشروع على امتدادات ومساحات متعددة قد تتطلب وقتًا للتكيف معها. كما أن التركيز الكبير على الاندماج الطبيعي قد يقلل من وضوح الحدود بين الداخل والخارج في بعض المساحات، ما قد يؤثر على الخصوصية أو سهولة الحركة اليومية في بعض الأوقات.
بهذا الشكل، يظهر المشروع كحالة معمارية مثيرة للاهتمام، مع مزايا واضحة واعتبارات يمكن تحسينها في تجربة الساكن اليومية.
قُدم لكم بكل حب وإخلاص من فريق ArchUp
لا تفوّت فرصة استكشاف المزيد من أخبار معمارية في مجالات الفعاليات المعمارية و مشاريع معمارية عبر موقع ArchUp.







