مشروع الواجهة البرتغالية يستكشف العلاقة بين العزلة العمرانية والفراغ الداخلي
العتبة الاجتماعية في الفضاء اليومي
يشير النص إلى ممارسة يومية في السياق الريفي تتمثل في إخراج الكراسي إلى الشارع مساءً، حيث يجتمع السكان مع الجيران لالتقاط نسيم المساء. هذه الممارسة تعكس نمط حياة يعتمد على التفاعل الاجتماعي العفوي، وتُظهر ارتباط الفضاء العام بالعلاقات اليومية غير المنظمة.
الواجهة كأداة للإبطاء البصري
ينطلق الطرح من فكرة العودة إلى أنماط حياة أكثر هدوءًا، حيث تصبح الواجهة المعمارية عنصرًا قادرًا على إيقاف حركة المارة ودفعهم إلى الالتفات. هنا لا تُعامل الواجهة كعنصر منفصل، بل كجزء من التجربة المعمارية نفسها، يساهم في خلق لحظة توقف وتأمل داخل السياق الحضري.
الفراغ الوسيط بين العام والخاص
بالاستناد إلى مفهوم الفراغ الوسيط في العمارة اليابانية المعروف باسم “إينغاوا”، يتناول النص العلاقة بين العام والخاص عبر حدّ معماري غير مباشر. في هذا السياق، يُوظف الحد الفاصل دون تحويله بالضرورة إلى مساحة عامة، بل كمنطقة انتقالية تتيح التوقف والجلوس دون نشاط محدد، حيث يعمل الخاص في خدمة العام بشكل غير مباشر.
الواجهة كطبقة بصرية بين الداخل والشارع
يعتمد التصميم على واجهة ذات طابع برتغالي، مكسوة ببلاطات سيراميكية زرقاء كوبالتية بقياس 10×10. تنتج هذه المادة انعكاسات متغيرة تتفاعل مع الشارع المحيط، بينما تعمل النوافذ الكبيرة كوسيط بصري يسمح بقراءة العلاقة بين الداخل والخارج دون دمج كامل بينهما.
العزلة العمرانية وحدود الاتصال الخارجي
يقع المشروع ضمن نسيج من الكتل السكنية الكثيفة، حيث يقتصر ارتباطه بالعالم الخارجي على الواجهة فقط. في المقابل، يتم عزل باقي الكتلة بشكل كامل. بعد عبور الواجهة، يتحول التنظيم الداخلي إلى امتداد عمودي للفراغ، دون استمرارية مباشرة مع المحيط الخارجي.
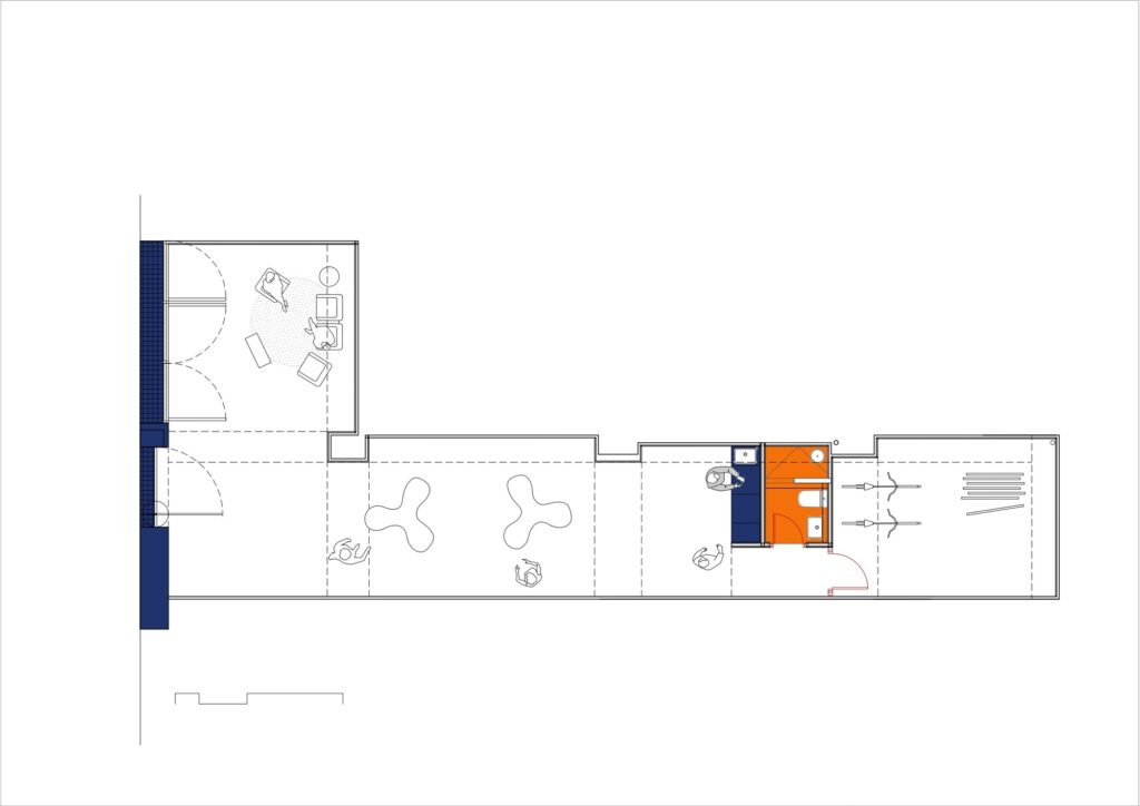
الفراغ الداخلي ونظام اللون الوظيفي
يتكوّن الداخل من مساحة مفتوحة تنتهي بوظائف أساسية محدودة تشمل مطبخًا صغيرًا وحمامًا وغرفة تخزين. الجدران البيضاء تشكل الخلفية الأساسية للفراغ، بوصفها مساحة محايدة قابلة للاستخدام. ضمن هذا الإطار، يظهر تمييز لوني بين الأبيض المستخدم كمساحة عمل، والأزرق والبرتقالي المرتبطين بعناصر التنظيم والاستخدام، بما يعكس نظامًا بصريًا وظيفيًا داخل الفراغ.
✦ تحليل ArchUp التحريري
ينتج هذا التنظيم المكاني عن اقتصاديات القرب في السياق العمراني، حيث تتحول الممارسات الاجتماعية غير الرسمية، مثل إخراج الكراسي إلى الشارع في السياق الريفي، إلى بديل منخفض التكلفة للبنية العامة المنظمة. هنا لا تُفهم الواجهة كقرار جمالي، بل كاستجابة تنظيمية لضبط حركة المشاة وإعادة توزيع التفاعل ضمن نسيج سكني كثيف يخضع لتراكمات التخطيط والضغط العقاري. تفرض قيود التقسيمات العمرانية وكثافة الاستغلال تحويل الواجهة إلى وسيط مزدوج الوظيفة بين التحكم البيئي والاجتماعي، مع إبقاء الداخل معزولًا. يعمل الفراغ الوسيط المستلهم من مفهوم “إينغاوا” كآلية تنظيمية بين الانفتاح العام والانغلاق الخاص، منتجًا منطقة انتقالية غير إنتاجية لكنها قابلة لامتصاص التفاعل. أما الداخل فيعكس منطق كفاءة الإنشاء وتوحيد المواد، حيث تُستخدم الأسطح البيضاء كشبكة حيادية منخفضة التكلفة، بينما تُحوَّل الألوان إلى نظام ترميز وظيفي لتحديد الاستخدام وليس التعبير.