Po-Yo House in Buenos Aires: Reinterpreting the Relationship Between Old and Contemporary Architecture
An Overview of the Po-Yo Project
Po-Yo House is located in the Villa Devoto neighborhood of Buenos Aires, resulting from a comprehensive transformation of a pre-existing home. The project offers a contemporary interpretation of the original structure, preserving the home’s spatial virtues while giving it a renewed identity that harmonizes with the surrounding environment.
Interaction Between Old and New
The design reflects a respect for the home’s architectural history, retaining key elements and reinterpreting them in a modern way. This approach allows the original spaces to be fully utilized, while adding contemporary touches that make the living experience more dynamic and flexible.
Spatial Dynamism and Visual Connectivity
The project stands out through the reorganization of levels and internal pathways, enhancing cross-views between different areas of the home. This creates a continuous visual dialogue between spaces, adding a sense of depth and movement without compromising comfort and intimacy.


Integrating Indoor and Outdoor Spaces
The design concept originated from the idea of merging indoor and outdoor spaces, with a focus on enhancing the sense of height and light, as well as maintaining visual continuity between different areas of the home.
Revealing the Concrete Structure
The reorganization involved removing partition walls, which highlighted the exposed concrete structure that has become part of the home’s character and architectural memory. This approach showcases the essential structural details and gives residents a sense of solidity and clarity in the design.
The New Envelope and Architectural Identity
The new design is defined by a box-shaped concrete envelope, giving the house a strong and cohesive identity. This structure makes the home appear precise and balanced, creating a sense of unity and robustness without compromising visual or functional comfort.

The Gate and Entrance as a Transitional Element
The entrance forms the starting point of the home experience, where a 3.5-meter-high gate made of folded metal sheets leads to a small courtyard. This courtyard acts as a threshold and an extension of the urban space, creating a seamless transition between the street and the interior.
Gradual Design of the Internal Pathway
The entrance is structured around a sequence of concrete cubes, forming a gradual pathway that separates the home’s private space from the street. This arrangement prepares visitors for a complete interior experience while maintaining privacy and creating a sense of spaciousness and harmony before entering the indoor areas.



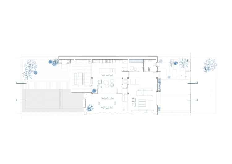
Distribution of Interior Spaces
Upon entering the house, the main living area welcomes visitors, forming the first space in the spatial sequence defined by the home’s original levels.
Connection Between Kitchen and Dining Room
A few steps below the living area lie the kitchen and dining room, which are directly connected to the garden and pool. This enhances the integration of indoor and outdoor spaces, allowing practical use and open areas for daily activities.
Upper Floor and Basement
From the living area, a staircase leads to the upper floor, where the master suite and two additional bedrooms are located. Conversely, a separate staircase connects to the basement, which houses the playroom and laundry room, allowing the separation of recreational and service functions from the rest of the home and increasing flexibility of use.

Visual Dynamism Across Levels
Despite the varying levels of the house, these changes do not fragment the internal pathway; rather, they enhance cross-views and connections between different areas, adding a sense of dynamism and spatial depth to the design.
The Main Staircase as an Architectural Sculpture
The main staircase stands out as a sculptural element within the design, as its trajectory pierces the sloped ceiling and creates a play of diagonal lines that reinforces the home’s geometric identity while adding an artistic character to the interior space.
Impact of Metal Frames
The metal frames around openings generate contrasts of light and shadow, establishing a new visual rhythm on the façade. This adds a design dimension that balances solidity and flexibility in the home’s exterior form.


Interior Atmosphere and Materials Used
Inside the house, stone-like floors, along with anodized woodwork and wooden furniture, create a serene and timeless atmosphere. These elements reflect the designers’ attention to detail and materiality, imparting a sense of warmth and continuity.
Reinterpreting the Existing Structure
Po-Yo House is more than just a renovation; it is a reinterpretation of the existing structure. This process combines respect for the architectural past with a contemporary vision of urban living, giving the home a renewed identity that harmonizes with its surroundings while meeting the demands of modern life.

✦ ArchUp Editorial Insight
Po-Yo House provides a clear example of an attempt to reinterpret the existing architectural structure by merging indoor and outdoor spaces and reorganizing levels to enhance visual connectivity. From an analytical perspective, the project succeeds in creating a certain spatial dynamism and highlights attention to detail in the use of interior materials, such as stone-like floors and wooden finishes, which impart a sense of warmth and continuity.
However, from a critical standpoint, some design decisions can be seen as practical challenges rather than fully effective solutions. The removal of partition walls and the exposure of the concrete structure create a sense of openness and clarity but may limit privacy in certain areas and make controlling acoustic and lighting conditions more complex. Likewise, the strict concrete envelope may affect visual comfort for occupants, particularly in smaller spaces or during certain times of the day. The internal gradients and the sculptural main staircase, while contributing to the visual identity, could impose limitations on ease of movement, especially for children or individuals with functional needs.
From a broader architectural perspective, the project can be considered an inspiration for how existing homes can be approached and reinterpreted. At the same time, it emphasizes the importance of balancing aesthetic vision with functional considerations. Lessons from Po-Yo can be applied to create dynamic solutions and staggered pathways while carefully studying spatial privacy, daily comfort, and practical sustainability, ensuring a fully integrated residential experience.
Prepared by the ArchUp Editorial Team
Don’t miss the chance to explore more from Architecture in fields like Design and Interior Design on the ArchUp website.







