Brussels Home Project Redefining Spatial Layout, Lighting, and Energy Efficiency
Transforming a Traditional Home into a Contemporary Space
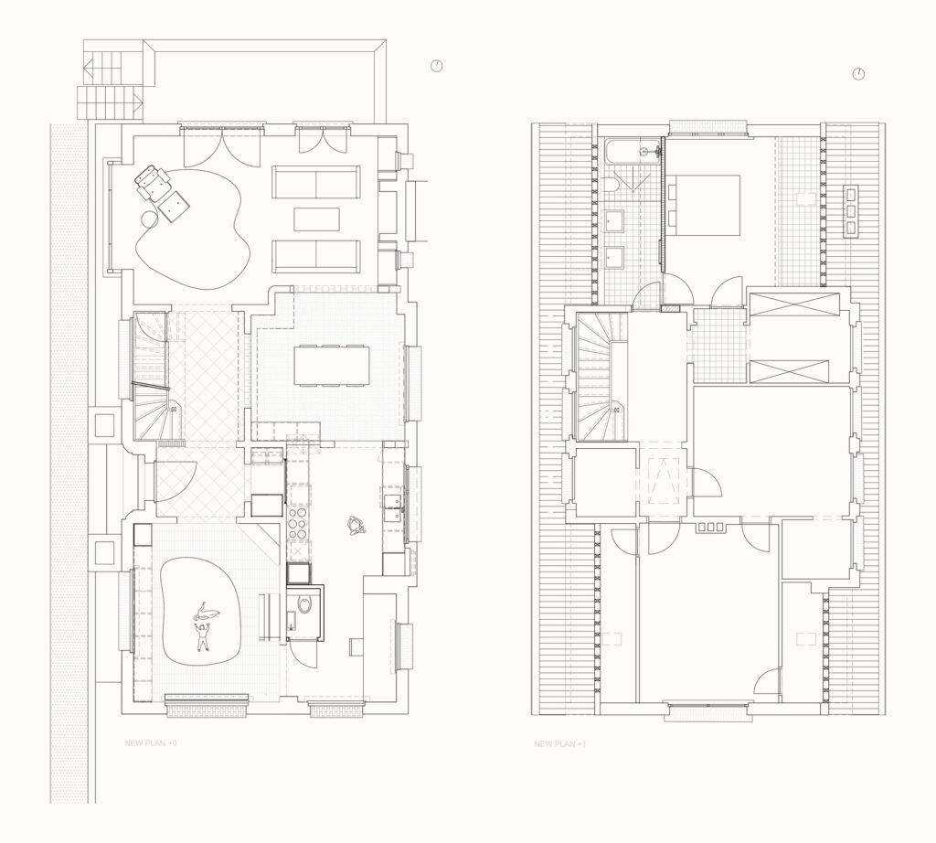
The renovation of this detached house in Brussels exemplifies how traditional residences can be reinterpreted to meet the demands of contemporary living. Instead of merely focusing on superficial restoration, the project relied on a comprehensive reorganization of the interior spaces.
Addressing Interior Layout
Previously, the house consisted of small, enclosed rooms that lacked visual and functional connectivity, limiting natural light penetration and reducing daily usability. These issues were addressed by dismantling unnecessary internal partitions, following best practices in interior design projects.
Open Design and Enhanced Lighting
As a result of this transformation, the interior layout became more open and interconnected, allowing for better distribution of natural light throughout the home. This change not only enhanced aesthetics but also improved visual comfort and the overall quality of daily life for the residents.



Reorganizing Interior Spaces
The renovation process focused on reshaping the interior spaces to achieve a smoother and more harmonious spatial flow. To this end, partition walls that fragmented the areas and limited their connectivity were removed, allowing for an open-plan layout that enhances the interaction between different living zones.
Open Plan and Spatial Continuity
As a result of this transformation, the spatial experience within the house improved significantly, with transitions between spaces becoming more fluid. This approach also reinforced a clear sense of continuity and visual unity across the various parts of the residence.
Repositioning the Kitchen
Meanwhile, the kitchen underwent a fundamental change in both location and function. Previously isolated from the rest of the spaces, it was repositioned to become a central hub for daily activity. With the introduction of new windows and an updated layout, the kitchen now functions as an open area seamlessly integrated with the living and dining zones, enhancing the home’s social character.

Enhancing Natural Light
Special attention was given to improving the distribution of natural light throughout the house, with new windows installed featuring elegant gray aluminum frames. These additions helped introduce more daylight while maintaining visual harmony between the building’s traditional and contemporary architectural elements.
Improving the Kitchen Environment
In the kitchen, the window level was lowered to align with the countertop, allowing for better utilization of natural light and creating a bright, comfortable cooking environment. This adjustment reflects a focus on practical functionality, visual comfort, and aesthetic appeal.
Increasing Energy Efficiency
In addition to enhancing lighting, the new windows contributed to improved energy efficiency. The old single-glass units were replaced with double-glazed windows, reducing heat loss and enhancing thermal insulation. This upgrade also had a tangible impact in the basement, where new windows and a sturdy metal door replaced less efficient existing elements, boosting the building’s overall energy performance.


Preserving the Structural Framework
The project focused on highlighting the house’s original structural framework, which serves as a fundamental element in the design. The goal was not only to maintain structural integrity but also to create a distinctive visual feature that guides movement and enhances spatial flow within the interior spaces.
Integrating Practical Solutions with Aesthetics
Custom-designed cabinets were seamlessly integrated throughout the ground floor, providing practical storage solutions without disrupting visual continuity. Moreover, these cabinets act as an aesthetic link between different areas of the home, enhancing daily functionality while adding a unique touch to the interior environment.

Preserving the Exterior Character
On the exterior, the renovation was limited to selective and carefully considered changes, aimed at maintaining harmony between the additions and the house’s original architecture. The gray aluminum window frames and carefully chosen materials contributed to a cohesive and elegant appearance, reflecting and preserving the building’s historical character while reinforcing the visual identity continuity of the home.


✦ ArchUp Editorial Insight
The project can be considered effective in reorganizing interior spaces and enhancing natural lighting, as the open-plan layout provided some flexibility in movement within the house and improved the connectivity between different areas. However, overall, the project remains somewhat limited in terms of architectural innovation, as it does not move beyond the traditional framework of a detached home and relies on relatively conventional design solutions. Removing interior walls and creating an open plan addresses certain spatial constraints, but it does not offer clear mechanisms for adapting to future changes in residents’ needs or for expanding the multifunctional use of spaces.
Additionally, despite improvements in lighting and energy efficiency, focusing primarily on windows and frames without a comprehensive reevaluation of ventilation and HVAC systems reduces the project’s potential to achieve fully integrated environmental efficiency. Highlighting the original structural framework alongside the new windows also introduces a slight contrast between old and contemporary elements, which may affect the sense of visual cohesion for some users.
Nevertheless, this project can serve as a practical example for understanding the challenges associated with renovating traditional homes, particularly regarding spatial distribution, natural light enhancement, and energy efficiency improvements within the constraints of budget and original design. It also provides a foundation upon which future, more flexible and innovative experiments can build, integrating modernity with traditional structure. For more insights and case studies, readers can explore related projects and archives.







