Caetés House: Redefining Family in the Urban Environment
| specialization | details |
|---|---|
| Architects | Ateliê GR |
| Area | 243 m² |
| Year | 2024 |
| Photographs | Nelson Kon |
| Manufacturers | Neorex, Permetal |
| Lead Architect | Gabriel Rodrigues Grinspum |
| Category | Residential Architecture, Houses |
| Project Team | Catarina Raposo, Paulo França |
| Engineering & Consulting > Lighting | Ricardo Heder |
| Engineering & Consulting > Structural | Franco Petrelli Maccheroni (PETRI Projetos de Fundações e Contenções) |
| Engineering & Consulting > Facilities | Maria Aparecida Musilani (MULISANI Consultoria e Projetos) |
| General Construction | EPS Obras (Estrutura e Acabamentos), MM fundações, Aços Caieiras, Polly concretos e pinturas |
| City | São Paulo |
| Country | Brazil |
Site Context and Land Use
Caetés House is located in a mixed-use urban area, where the surrounding street combines residential and commercial activities. This diversity of uses reflects the challenges faced by architectural design in cities, such as achieving privacy for residents while taking advantage of the surrounding urban context.
Design Suited for an Extended Family
The house was designed for a large family consisting of a couple and five children, necessitating interconnected spaces that support daily family interactions while maintaining individual autonomy. This configuration reflects the designers’ need to create a flexible and complex architectural structure, capable of adapting to the diverse and branching lifestyles of large families.



Building Structure and Design Principles
The design of Caetés House is based on a compact three-story structure, aimed at maximizing space utilization while ensuring natural light penetration and effective ventilation throughout the home. The design follows an open-plan concept, supported by drywall partitions, providing significant flexibility in organizing interior spaces and adapting to the family’s evolving needs.
Middle Floor: Integration of Work and Leisure
The middle floor, located at street level, houses the garage and two independent offices. This floor integrates adults’ professional activities with children’s recreational areas, such as play zones and video-watching spaces, reflecting an adaptive design that seeks to balance work and family life.
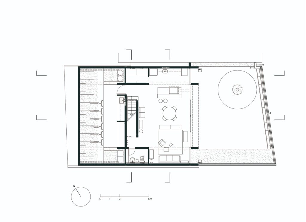
Lower Floor: Social and Service Spaces
The lower floor, set at a semi-buried level, combines living rooms, dining areas, and the kitchen, with direct integration to the outdoor garden. Vertical openings enhance natural ventilation and preserve privacy, while providing extended views of the horizon, creating a living experience connected to the surrounding environment.
Upper Floor: Privacy and Environmental Comfort
The upper floor is dedicated to private rooms, such as bedrooms, arranged along a corridor illuminated by a concrete skylight. High ceilings and cross-ventilation, facilitated through perforated panels, contribute to ideal indoor environmental comfort, while maintaining privacy and tranquility for the occupants.


The Roof as an Active Environmental Element
The roof of Caetés House functions as a garden slab, serving as a “green sponge” that helps retain rainwater. The system relies on a permanent water layer, ensuring waterproofing, providing irrigation during dry periods, and enhancing the thermal performance of the house. This strategy demonstrates how architectural design can integrate environmental sustainability and reduce dependence on costly traditional construction solutions, such as asphalt membranes. Additionally, the technical area has been designed to facilitate future integration of solar energy, reflecting a move toward smart and sustainable homes.
Aesthetics and Architectural Language
Caetés House expresses an architectural language centered on raw aesthetics, showcasing exposed bricks, concrete blocks, and prefabricated ceilings, along with “zero-slab” flooring. Installations are left exposed and colored according to a specific code, creating a balance between industrial character and craftsmanship.
The House as a Multi-Generational Urban Concept
Based on modern architectural principles, the house embodies the idea that “the city is a house and the house is a city,” functioning as a multi-generational shelter capable of accommodating the diverse needs of an extended family. It creates connections between indoor and outdoor spaces, as well as between private areas and shared communal spaces.



✦ ArchUp Editorial Insight
It can be observed that Caetés House offers several positive aspects, such as attention to natural light and ventilation, and the integration of the roof as an environmental element that enhances sustainability, providing useful examples of eco-friendly building concepts. However, some design elements may raise practical questions when applied on a larger scale, such as the complexity of the three-story structure and its relation to the actual flexibility of family spaces, or how the long open boundaries might affect privacy in a mixed-use urban environment. Additionally, the integration of professional and recreational functions on the same floor may require careful study to avoid conflicts between different uses over the long term.
From a broader architectural perspective, the project presents a model from which lessons can be drawn regarding the organization of spaces for large families and the balance between sustainability and daily comfort. At the same time, it highlights the challenges of applying these ideas in diverse urban contexts, where such solutions may need adaptation to become more practical and adaptable.







