Rehabilitating a Rural House in Riaza: Integrating Historic Structures with Climate Strategies and Central Spaces
Adaptive Reuse of Historic Structures in Architectural Design
This project is located in a small village within the Riaza Mountains of Segovia and is based on the remains of an old stable constructed from rough stone and rammed earth. The roofs and internal partitions were in a severe state of deterioration, which required rethinking the use of the space rather than fully reconstructing the original building.
Preserving the Envelope as the Foundation for the New Design
Instead of attempting to reproduce every detail of the old building, the project relies on the existing envelope as a spatial boundary and design reference. This approach allows for the creation of an open central space used to organize contemporary domestic life in a flexible manner, while maintaining the historical spirit of the place.


The Role of the Central Void in Spatial Organization
The design incorporates a central void that reflects an architectural concept focused on natural light and ventilation. This space contains a small pool positioned above the remains of an old water cistern, adding both a historical and functional dimension.
The Open-Space Strategy
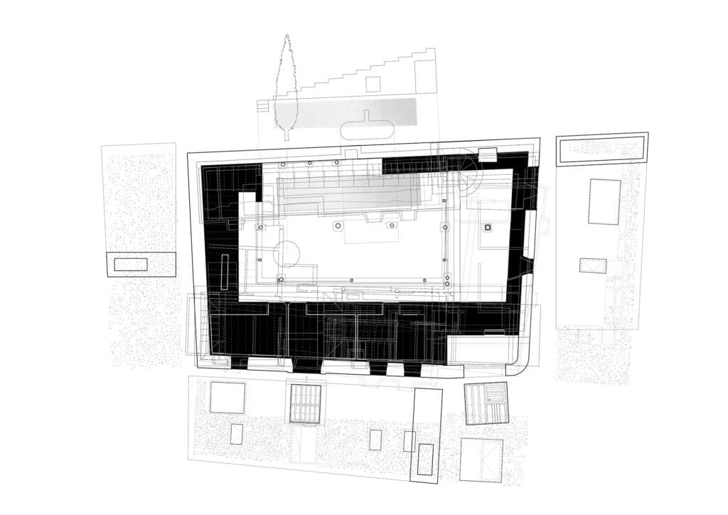
The project’s spatial strategy is based on carving out this central void and establishing it as a key element in organizing the house. The void becomes an internal courtyard, functioning as a window to the sky, while maintaining a sense of openness even if adjacent residential structures are built to the west and south. This approach highlights the importance of open space as a fundamental component of everyday living, rather than relying solely on an enclosed building form.

Organizing Spaces Around the Courtyard
The new architecture is structured around the central courtyard, with three pitched-roof wings arranged and interconnected through roof openings. These connections create a new open passage from the street, guiding movement toward the first wing, which contains the living room.
Interaction Between the Old and the New
The new volumes rest against the existing walls, with varying setbacks on each façade. These setbacks allow the new internal layout to be perceived from the exterior, expressing the dialogue between the original structure and the contemporary architectural intervention.
Use of Roof Openings and Platforms
Each wing terminates with roof openings that allow natural light to reach the spaces beneath the sloped ceilings, while the third wing becomes an empty tower that provides a platform for viewing the surrounding landscape. This tower also acts as an architectural marker inspired by the nearby bell tower of a Romanesque church, linking the design to the historical context of the area.

Design of Circulation Paths and Spatial Connectivity
A permeable corridor surrounds the new courtyard, equipped with large windows that distribute access to the various rooms. Retractable staircases also provide a link between the corridor and the spaces beneath the roof, enhancing vertical circulation and flexibility in the use of space.
Integration Between Interior and Exterior
The living room offers a cross view that brings together the outward view of the courtyard and the interior space, achieved through a large opening created in the rammed-earth wall. In the most deteriorated areas, the wall was covered with a layer of lime plaster as a means of preserving the old structure while integrating it into the contemporary interior design.


Material Dialogue Between Old and New
The project expresses a sense of continuity between past and present through the integration of traditional materials with contemporary interventions. The stone and rammed-earth walls are consolidated using lime, with the application of a traditional sgraffito technique characteristic of the region.
Unifying Surfaces and Differentiating Eras
The same technique is also applied to the new thermal clay façades, creating a visually continuous surface that connects the old and the new. In this way, the distinction between different eras is perceived through successive layers of the same material rather than through a sharp contrast, reinforcing visual harmony while preserving the site’s historical character.

The Hybrid Structure and Its Role in Building Preservation
The new architecture is based on a hybrid structural system combining concrete, timber, and steel, designed to integrate with the preserved historic walls. This integration makes it possible to correct differential settlements, deformations, and material loss in the most eroded areas, thereby enhancing structural stability and extending the building’s lifespan.
Strengthening the Relationship Between the Home and Nature
The new spaces seek to reinforce interaction between the house and its surrounding environment, taking into account climatic phenomena such as sun, rain, and snow, as well as extreme temperature conditions. The design also emphasizes sensory aspects, including silence, reduced light pollution, and air quality, transforming the building into a holistic living experience that balances the relationship between people and nature.


Passive Climate Design Strategies
The project relies on an integrated climatic ecosystem that achieves thermal comfort through passive strategies. These include the use of a radiant floor system connected to the ground, the preservation of an internal insulating envelope, rainwater harvesting, and the chimney effect generated by the double-height configuration of the bedroom wings and the open courtyard.
The Pool as a Microclimatic Element
The longitudinal pool within the outdoor space functions as a thermo-hygrometric mediator, contributing to the moderation of the local microclimate and creating a comfortable domestic atmosphere in harmony with the seasonal rhythms of the surrounding environment.
Reinterpreting Rural Ruins
The house acts as an observation device at the edges of an emptied territory, reinterpreting rural ruins through new openings and elevated platforms oriented toward the mountain landscape. This approach creates a comprehensive seasonal retreat that connects contemporary living with the site’s architectural heritage.

✦ ArchUp Editorial Insight
It can be observed that the project makes clear use of central spaces and the integration of old and new structures, as the open courtyard and roof openings provide a natural connection between interior and exterior. At the same time, the reliance on traditional materials and sgraffito techniques reinforces a sense of historical continuity.
Nevertheless, the project raises several challenges that can be discussed from a broader architectural perspective. For example, the use of the pool as a thermo-hygrometric mediator may be only partially effective in variable climates, as its performance could be reduced during very cold or extremely hot days. Likewise, the hybrid structure combining concrete, timber, and steel introduces long-term maintenance complexity, particularly when integrated with traditional walls, and may require ongoing monitoring to prevent material degradation or cracking.
Furthermore, the project leaves a large open space as its main organizing axis, which requires the owner or user to adopt precise maintenance strategies for the outdoor space and to plan daily use in a way that preserves the functionality of the areas. The design of circulation paths and retractable staircases also adds an operational complexity that may not be suitable for all residential contexts, especially in cases of future expansion or changing user needs.
From a wider perspective, the project offers a valuable opportunity to study the adaptive reuse of historic buildings and the application of passive climatic strategies. At the same time, it demonstrates that integrating contemporary solutions with historic structures requires a careful balance between sustainability, maintainability, and everyday user experience. Architects and researchers can benefit from this case by examining its practical and technical constraints, rather than focusing solely on aesthetic or philosophical aspects.
