Agrosemillas Offices: Industrial and Administrative Integration
| Field | Details |
|---|---|
| Architects | Impepinable Studio |
| Area | 280 m² |
| Year | 2025 |
| Manufacturers | Artemide, Bene USM, Lebrel, Muuto, Notson, VitrA |
| Lead Architect | Gabriela Barrera |
| Category | Office Buildings |
| Technical Architect | Miguel Ruiperez |
| Metalwork | Oscar Remolino |
| Construction Company | Cresver80 |
| Services Engineering | Norta |
| Structural Engineering | www.gv408.com |
| City | Madrid |
| Country | Spain |
Spatial Context and Regional Character
The offices of Agrosemillas are located within an agricultural-industrial environment that is primarily shaped by the scale of large logistical infrastructures and heavy vehicles, rather than by direct human scale. As a result, the functional and productive character dominates the reading of the site, where technical and production processes become the primary organizing elements of the overall landscape.
Relationship of the Site to the Surrounding Urban Fabric
On the other hand, the complex is positioned along a national road that separates it from the small town of El Peral, a low-density municipality with a population not exceeding 660 inhabitants. This spatial separation reinforces a condition of relative isolation, limiting its direct connection to the urban fabric, while simultaneously opening it up to a vast agricultural landscape that lacks clear reference points in nearby Cities.
Climate and the Rhythm of Productive Activity
In addition, the overall landscape is characterized by extensive agricultural fields, which enhance the horizontal nature of the site and reduce visual contrast within the surrounding environment. The site is also subject to a climate marked by sharp seasonal variations, including periods of heavy rainfall.
In the same context, the operational rhythm of the site is closely intertwined with these natural transformations, as the working pace follows agricultural cycles linked to harvest seasons, alternating between periods of calm and phases of intense and continuous activity.


Integration of Workspaces within a Complex Operational Environment
In this context, the project responds to the need to organize workspaces capable of supporting concentration, meetings, and development processes within an environment dominated by noise, dust, and intensive logistical activity. Accordingly, the Design does not appear as an isolated element detached from operational reality, but rather as an extension that seeks to adapt to its immediate physical conditions.
Diversity of Users and Multiple Modes of Work
On the other hand, the building accommodates a wide range of users, extending from warehouse workers to engineers involved in Research and development processes. Due to this diversity, the nature of tasks and schedules changes throughout the year, imposing non-static systems of use that vary according to work requirements.
Organizational Flexibility versus Spatial Clarity
As a result, providing internal flexibility becomes a fundamental requirement to accommodate different working patterns without compromising the clarity of spatial organization. In other words, the design seeks to achieve a balance between adaptability on one hand and a clear, well-structured spatial system on the other.
Relationship with the Surrounding Industrial Fabric
At the same time, the building maintains a direct relationship with the adjacent warehouses and industrial Buildings, ensuring visual and functional continuity with the broader context of the complex and reinforcing its integration within the surrounding operational system rather than isolating it from it.

Institutional Transformation and the Redefinition of Architectural Role
In this framework, the new building is understood as a response linked to a transitional phase experienced by the company, where its role is no longer limited to traditional production, but has expanded to include technological innovation and the strengthening of environmental responsibility. Accordingly, the Projects become part of a broader reading of institutional identity transformation and shifting priorities.
Between Continuity and the Reshaping of Identity
From this perspective, the Architecture engages with this phase as a delicate balance between continuity with the existing historical legacy and the redefinition of a more open and flexible identity. As a result, the architectural structure emerges as an intermediary between past and present, without breaking from the former institutional context.
Material Expression of Institutional Identity
At the formal level, this approach is reflected through the direct and explicit use of the corporate colors, green and yellow, employed as a visual organizing element that connects the building to the company’s identity in a non-promotional but expressive manner. In addition, this treatment contributes to reinforcing the reading of the building within its broader institutional context, often documented in the company Archive.
Interactive and Controllable Facades
In the same context, the façades are punctuated by large circular openings, fitted with operable circular shutters that can be manually controlled, functioning as mechanisms that regulate the building’s openness to its surroundings. Thus, the façade is not treated as a fixed element, but as an adaptable and responsive system that allows a graduated relationship between interior and exterior according to operational needs, showcasing modern Construction techniques and specialized Building Materials.

Integration of Offices and Production Facilities
The implementation of the offices was carried out in parallel with the development of more than 4,500 square meters of new production and storage facilities, where the project was treated as a single unified entity sharing Construction systems, materials, and execution methods. In this sense, the offices were not separated from the surrounding operational structure, but rather introduced as part of an integrated building system.
Reliance on Local Expertise
In this context, the project directly relies on skills available within the nearby local area. Craftsmen from the neighboring village participate in the execution, such as blacksmiths and plumbers, along with formwork carpenters from the adjacent town, in addition to industrial construction teams operating in the region. Consequently, the building emerges from the interaction of different layers of practical expertise available locally, as often highlighted in Publishing News regarding regional development.
The Impact of the Craft Context on Technical Decisions
As a result of this approach, the reliance on local expertise had a clear influence on the project’s technical decisions, where certain structural solutions were adapted to match the real capabilities of execution on site. Thus, the project does not appear as an isolated technical product, but rather as a direct response to the craft and construction realities of its context.
Toward a Restrained Structural Approach
Ultimately, this approach reinforces the emergence of a restrained and intentional architectural language, based on reducing structural complexity in favor of execution clarity and material realism, reflecting a direct relationship between Architecture intent and actual construction capabilities.

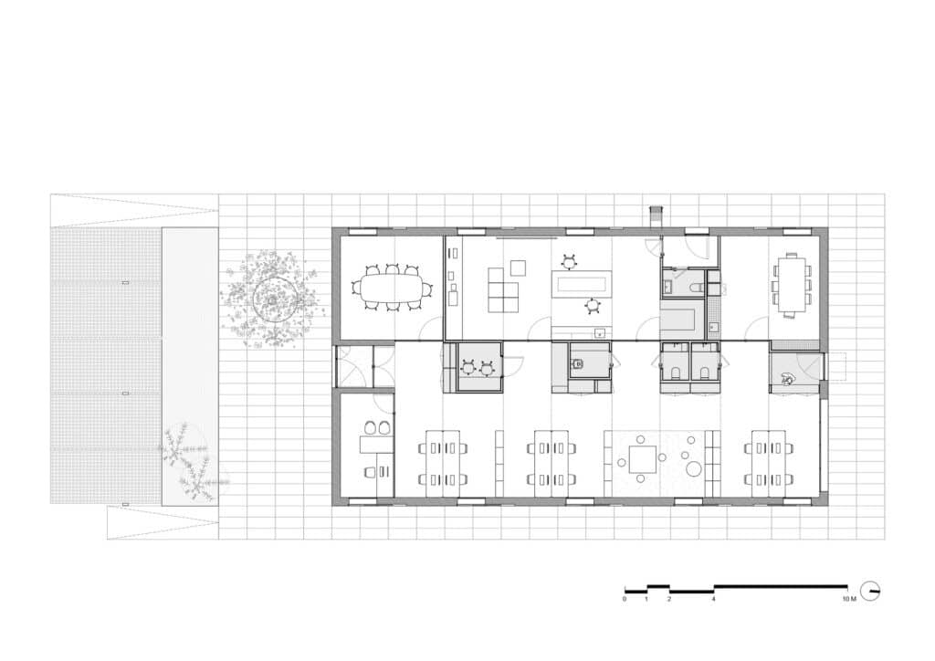
Spatial Organization and the System of Repetition
From a spatial perspective, the building is based on a clear organizational system rooted in repetition, where space is shaped according to a simple structural logic that allows the elements to be read in a direct and orderly manner. This approach aims to achieve clarity in the internal composition without unnecessary visual or structural complexity, a common topic of Discussion in modern industrial design.
Reinterpretation of Structural Elements
In this context, four units inspired by repurposed shipping containers are anchored on a shared concrete plinth alongside adjacent industrial warehouses. Two sides of these units have been opened up, allowing a redefinition of their conventional boundaries and transforming them from closed objects into more open spaces that engage with the surrounding Interior Design environment.
Roof Formation and Natural Lighting
As a result of this arrangement, a folded roof is formed, operating as a sequence of continuous skylights. This configuration allows diffused natural daylight to penetrate deep into the interior space in a soft and uniform manner, rather than relying on direct or concentrated artificial lighting. Technical details for such systems can often be found in Material Datasheets.
Light Direction and Its Quality within the Space
In addition, the north-facing orientation of the roof openings ensures a stable natural light with minimal variation throughout the day. Thus, a balance is achieved between natural illumination and its quality, as well as control over its intensity within the interior spaces, enhancing the visual stability of the building’s environment.


✦ ArchUp Editorial Insight
Agrosemillas offices operate as a spatial outcome generated by the redistribution of capital within the agro-industrial production sector, as part of an institutional shift toward Research and development and improved environmental compliance indicators. The primary driver is a functional reorganization that integrates offices with storage and production within a single operational network.
Points of friction emerge in the separation imposed by the national road from the small town, in the seasonal rhythm of agriculture, in the intensity of heavy vehicle movement, and in the limited availability of local construction techniques. These constraints are translated into a spatial system based on repetition, container-inspired units, controllable façades, and north-oriented roof openings designed to regulate natural lighting. In parallel, reliance on local craftsmen contributes to the reduction of structural complexity.
Ultimately, the building does not appear as an autonomous Design decision, but rather as a direct sedimentation of a logistical and organizational structure that governs the continuity of production, making it a standout among recent Projects in the sector.







