Exterior view of Alvim Kindergarten's new two-story extension featuring red vertical wooden cladding and a decorative trellis in Sarpsborg, Norway.

Alvim Kindergarten: Integrating Existing Structures with a Socially-Oriented Extension in Sarpsborg

Home » Building » Alvim Kindergarten: Integrating Existing Structures with a Socially-Oriented Extension in Sarpsborg

Social Context of the Project

Alvim Kindergarten is located in the Alvim district of Sarpsborg, Norway, an area facing clear social challenges. The neighborhood is home to a large number of low-income families and suffers from a noticeable shortage of childcare facilities, making the need for this project urgent at the community level.

Building Background and Architectural Development

The project involves rehabilitating an existing building dating back to the 1970s, with the addition of a new two-story extension. This blend of old and new is not merely a functional expansion but an attempt to redefine the building’s role in line with the current needs of the neighborhood.

Time and Budget Constraints

Despite limited funding and a tight schedule, the entire project was completed within just one year. This includes all phases, from site acquisition, through construction and design, to the official opening.

Practical Impact of the Project

The kindergarten’s opening coincided with the start of the school year, reflecting the efficiency of planning and execution. It underscores the importance of small-scale architectural projects that have a direct social impact in enhancing the quality of life within resource-limited communities.

Close-up of the vertical wooden cladding and decorative trellis structure with small birdhouses on the red facade of Alvim Kindergarten.
The facade features a decorative trellis that adds visual depth and supports biodiversity, integrating small birdhouses into the design. (Image © Mathilde Nordhaug)
Interior view of the cloakroom and storage area at Alvim Kindergarten with light wood lockers and blue carpeting.
Carefully considered details in the compact interior help organize the daily routines of children and staff efficiently. (Image © Carlos Rollan)

Architectural Form and Contextual Interaction

The new extension was designed offset from the existing building, a decision that combines a design gesture with a practical response to the site’s spatial constraints. This approach allows for a visual distinction between old and new, emphasizing the extension as an independent architectural volume.

Floor Gradation and Spatial Differentiation

While the original building consists of a single story, the new extension rises to two floors, highlighting the addition as a distinctive element that adds a new dimension to the existing structure. This topographical contrast strengthens the project’s visual identity and underscores its role within the neighborhood.

Color Identity and Cultural References

The surrounding neighborhood is dominated by white wooden houses. Choosing vertical wooden panels in traditional red for the extension reflects a unique building identity inspired by the traditional red barns of the Norwegian countryside. This color not only makes the kindergarten stand out as a public building but also maintains a connection to the cultural memory of the place, enhancing harmony between the building and its surroundings.

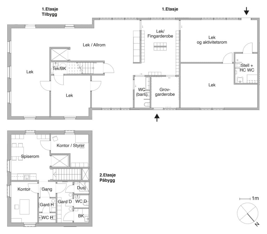
Floor plans of Alvim Kindergarten showing the compact layout of playrooms on the first floor and staff facilities on the second floor.
The compact layout aims to maximize play areas, reflecting efficient planning within a limited budget and timeframe. (Courtesy of Øyvind Johnsen Arkitektur)

Contemporary Roof Design

The roof is covered with traditional red clay tiles, in accordance with local planning regulations, yet the use of a flat version of the tiles gives the building a contemporary touch. This choice reflects a balance between adherence to tradition and the expression of modern architecture.

Wooden Pergola as a Living Element

On the gable facade, a wooden pergola was added, not for direct functional purposes, but as an additional design layer that provides visual generosity. The pergola is designed to support climbing plants, allowing the facade to gradually transform into a living surface that changes with the seasons, adding dynamism to the building’s overall appearance.

Interior of a playroom at Alvim Kindergarten featuring large low-silled windows, blue chairs, and a grey wall backdrop.
Large windows with low sills allow children to interact visually with the outside environment, enhancing their sense of openness. (Image © Carlos Rollan)

Optimizing Interior Spaces

Internally, the project aims to maximize play areas through a compact layout and carefully considered details. Large windows with low sills allow children to visually interact with the outdoor environment, enhancing their sense of openness and connection to the surroundings.

Colors and Lighting

The walls were chosen in soft gray tones to create a calm background that highlights the bright colors of murals, toys, and daily activities. The central playroom features a high ceiling thanks to the exposed structural frame, creating spatial variety and enhancing natural light, providing children with an engaging and visually stimulating interior design environment.

Acoustic Comfort and Internal Circulation

Acoustic ceilings with integrated lighting ensure an appropriate auditory and visual environment throughout the building. The second floor houses staff facilities, while the elevator platform provides access to meeting rooms for parents and visitors, reflecting a practical layout that balances educational and administrative functions.

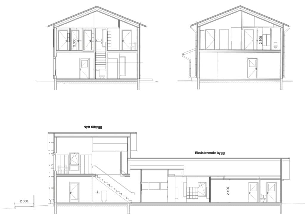
Architectural section drawing of Alvim Kindergarten showing the integration between the existing one-story building and the new two-story extension.
This section reveals the topographical contrast between the original 1970s structure and the modern two-story addition. (Courtesy of Øyvind Johnsen Arkitektur)

Enhancing the Outdoor Environment

The project focused on reorganizing outdoor spaces to improve safety and usability. The drop-off and pick-up route was adjusted to run along the street, reducing the need to navigate through traffic and increasing the daily operational safety.

Playground and Activity Areas

The main playground was relocated to the quieter side of the site, away from the nearby road. Sand pits and climbing structures were also placed in a calmer, safer environment, providing children with a secure daily setting for play and physical activity.

Strengthening the Kindergarten’s Social Role

These improvements help reinforce the kindergarten’s role as a safe and comfortable space for children, offering parents and teachers an organized environment to monitor the children easily while providing an outdoor area that is enjoyable and conducive to growth and social interaction.

Architectural detail of the red clay tile roof and matching gutter system at Alvim Kindergarten.
A contemporary take on tradition: the roof uses flat red clay tiles to meet local planning regulations while providing a modern aesthetic. (Image © Carlos Rollan)

Architecture with Social Value

Despite the small scale of the project, it represents a significant improvement for a neighborhood with an increasing need for childcare facilities. This demonstrates how architecture can play a social role even in limited-size projects.

Balancing Constraints and Identity

Within strict budgetary and regulatory constraints, the design delivers a building that is both robust and distinctive, balancing efficiency with identity and visual generosity. This project shows that smart architectural planning can achieve strong functional performance while enhancing the social character of a place.

Impact on the Community

Alvim Kindergarten demonstrates that small, low-cost buildings can carry substantial social meaning. It also confirms that precise architectural choices are not merely design details, but tools to strengthen both place and community, making architecture an effective means of positive social impact.

Symmetrical view of the red wooden facade of Alvim Kindergarten showcasing the window alignment and trellis shadows.
The vertical wooden planks and shifted extension design create a distinct visual identity for this social project in Sarpsborg. (Image © Mathilde Nordhaug)

✦ ArchUp Editorial Insight

The Alvim Kindergarten project can be seen as an opportunity to understand how to work with existing buildings under limited resources. Among its strengths, the project demonstrates the design’s ability to create a functional educational environment within a constrained space and tight budget, while paying some attention to cultural identity and integration with the neighborhood.

However, there are several points worth considering for similar future projects. The extension is relatively limited in relation to the potential number of children it can accommodate, and the use of certain elements, such as the pergola and large windows, raises questions about long-term maintenance and adaptation to Norway’s harsh climate. Additionally, the project’s reliance on combining the old building with the new extension limits architectural flexibility for reusing or further expanding the space later.

This experience can be leveraged by developing more flexible strategies for sustainable building materials and projects, integrating long-term solutions for maintenance, energy efficiency, and natural lighting. This approach would make any similar project more capable of enduring and achieving its social and educational objectives reliably. In this way, the project provides a foundation for understanding the balance between social ambition and practical constraints in designing small educational buildings, without the need for exaggeration in praise or overt criticism.


Further Reading From ArchUp

Leave a Reply

Your email address will not be published. Required fields are marked *