Care Villa: Adaptive Reuse Redefining Community Living
| Element | Details |
|---|---|
| Architects | FELT architecture & design |
| Area | 850 m² |
| Year | 2025 |
| Photographs | Olmo Peeters |
| Category | Healthcare Architecture |
| Lead Team | Judith De Pau |
| Office Lead Architects | Karel Verstraeten, Jasper Stevens |
| Design Team | FELT architecture & design |
| Client | vzw Emmaüs |
| Consultants | Robuust |
| City | Merksplas |
| Country | Belgium |
Adaptive Reuse of Existing Buildings in Care Projects
Transforming existing buildings into healthcare facilities represents an architectural approach that combines sustainability with functional efficiency. Instead of demolishing structures and rebuilding from scratch, this method allows designers to utilize existing frameworks and repurpose them to address contemporary social needs, such as creating supportive environments for individuals facing mental health challenges.
Deconstructing the Structure to Reveal the Architectural Idea
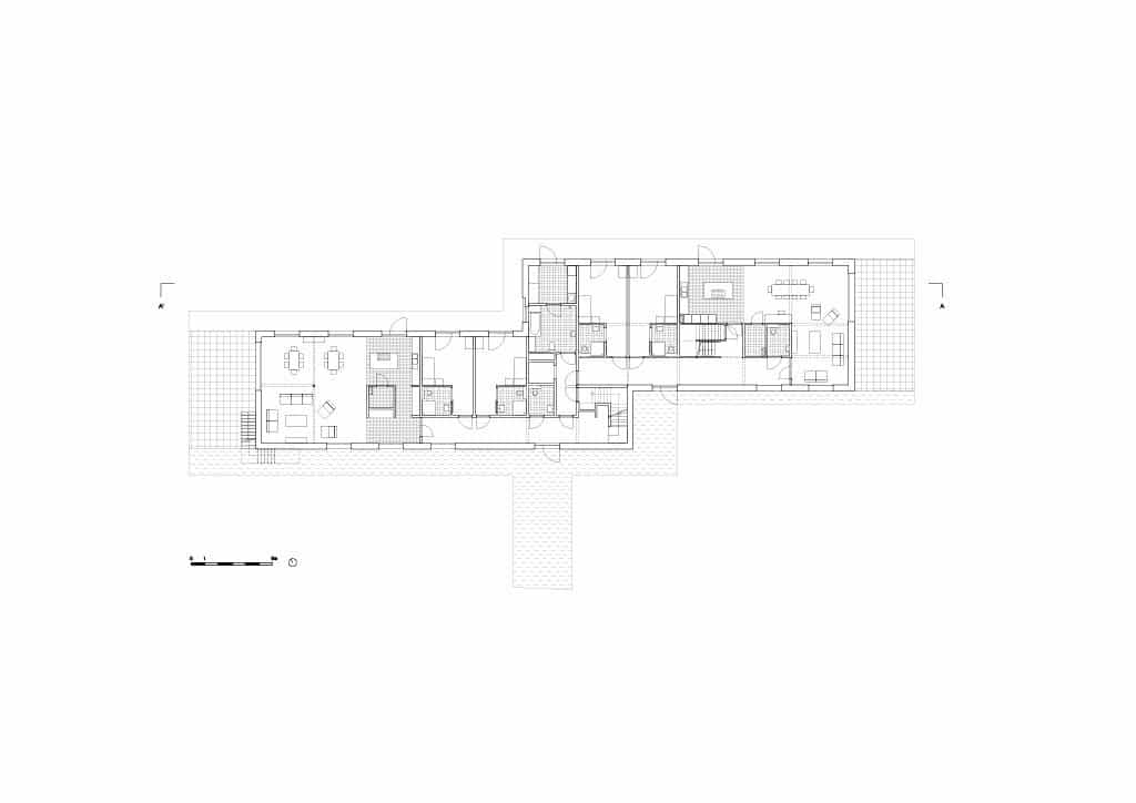
In many rehabilitation and adaptive reuse projects, the process begins by stripping the building of its secondary elements in order to expose its fundamental structure. This deconstruction reveals the logic of the original construction, such as the organization of parallel walls or the simple spatial relationships between rooms. By understanding this underlying framework, architects can develop a new layout that works with the existing structural system rather than replacing it.
Corridors as Organizing Elements in Interior Planning
After reinterpreting the original structure, a new spatial organization can be introduced that emphasizes clarity and ease of movement. Wide corridors often play a central role in this strategy, functioning as a backbone that connects a series of small residential units or independent studios. Through this approach, a balance is achieved between residents’ individual independence and their access to shared spaces, an important factor in the design of contemporary care environments.


Architectural Expansion and Accommodation of Small Communities
When designing residential care facilities, the core architectural concept is often expanded through the addition of new wings that accommodate extra residential groups. This approach makes it possible to create balanced living units, where a limited number of residents share a common housing framework. In this way, a model of small-scale communal living emerges, one that combines social support with individual privacy.
Balancing Collective Care and Personal Privacy
In this type of project, a fundamental challenge lies in achieving a careful balance between communal life and personal independence. On one hand, residents require a supportive social environment that encourages interaction and a sense of belonging. On the other hand, the need for private space remains essential for maintaining psychological comfort and daily autonomy. Architecture in this context therefore seeks to organize spaces in a way that allows shared areas and individual units to coexist without one dominating the other.
A Unified Façade and a Clear Urban Identity
In terms of its relationship with the street, many collective residential buildings present a cohesive façade that conveys unity and stability within the surrounding urban fabric. This unified frontage helps the building integrate visually with its context, while also giving it a distinct presence without creating a disconnect from the architectural environment around it.
Gabled Roofs and the Expression of Human Scale
By contrast, architectural variation may appear on the rear side of the building through the repetition of elements such as gabled roofs. This repetition creates a visual rhythm that reflects the subdivision of the building into smaller units, with each roof expressing the scale of a room or an independent living space. As a result, the building can be read as a cluster of small adjoining houses gathered within a single collective residential framework, one that preserves a human scale and reinforces a sense of intimacy.


Material Palette and Its Role in Integrating with Nature
Architectural materials play a significant role in shaping the visual relationship between a building and its surroundings. In many residential projects, a restrained and calm material palette is adopted to avoid sharp contrasts with the natural environment. For example, light gray tones can be used to give the building a balanced character that allows it to blend with the surrounding green spaces.
Unifying the color tone across different elements, such as brick, slate, and fine carpentry details, creates a clear visual harmony. Even technical components, such as gutters and drainage pipes, can be incorporated within this subdued color spectrum. As a result, the building appears as a cohesive part of the natural landscape while still maintaining a distinct architectural presence.
Formal Discipline and Architectural Rhythm
The concept of simplicity extends beyond material selection to include the architectural form and the organization of façades. Large openings arranged in a regular rhythm are often used to frame views toward gardens or outdoor spaces. This rhythmic organization reinforces a sense of calm and visual stability both inside and outside the building.
At the same time, the horizontal composition of the structure conveys a balanced character that suggests stability and serenity. This approach helps create a quiet architectural presence without relying on visually loud elements.
Façade Details and Integration with the Urban Fabric
Subtle shifts in the plane of the façade can introduce visual depth without disrupting the unity of the architectural mass. These slight offsets help break monotony while maintaining a sense of familiarity in the building’s overall form.
When such design strategies are applied within traditional residential neighborhoods, such as villa districts, it becomes easier to integrate the new building into the surrounding urban context. The result is a calm and balanced architecture: clear in its structure, refined in its expression, and carefully designed to meet the needs of the residents who will live within it.



✦ ArchUp Editorial Insight
It can be observed that the Care Villa project benefits from the existing structure and enables the adaptive reuse of buildings in a way that reduces waste and supports sustainability, while organizing spaces in a manner that enhances a degree of individual privacy. However, a clear challenge remains in the design’s ability to adapt to the needs of all users over the long term, particularly in relation to the future expansion of residents or evolving care requirements.
Additionally, the strong emphasis on visual harmony and a unified material palette may limit opportunities to introduce flexible or interactive elements that could enhance the residents’ everyday experience. It also raises questions about how the building might respond to climate changes or to intensive use over time.
Furthermore, the project could benefit from a broader examination of how technical facilities and supporting services can be integrated without compromising the human character of the spaces. It may also be valuable to reconsider the potential for expanding or modifying residential units in a more flexible manner to accommodate diverse needs in the future.
Overall, Care Villa represents a valuable case study in the adaptive reuse of existing buildings, while also highlighting the challenges architects face when attempting to balance privacy, future expansion, and the preservation of architectural identity.







